
Clear Glass Cgs Smart Rail - Base Rail Channel Balustrade
CGS SMART RAIL - BASE RAIL CHANNEL BALUSTRADE
CGS SMART RAIL - BASE RAIL CHANNEL BALUSTRADE
CGS Smart Rail is a base rail channel system for supporting glass in domestic residential and high rise apartment buildings.
The benefits of this system are enormous for those looking for an elegant glass balustrade system that unobtrusive allowing for maximum panoramic views
INFORMATION
QUANTITY
"CGS Smart rail" is now available in our custom satin stainless steel look as standard > Other options include Mill finish, anodized colors and our new exclusive anodized color Luxury Silver". CGS Smart rail is only available through Clear Glass Solutions. We can arrange for anodizing in standard RAL and Pantone colors if the quantity is sufficient.
BRAND
Clear Glass
PRODUCT TYPE
Rail Channel System
USE
We are offering a system that requires NO handrail when used in conjunction with DuPont SGP Sentryglass supplied by Clear Glass Solutions. Conditions apply. This is the system for apartments with a discerning client in mind!
ADVANTAGE
CGS Smart Rail can accommodate glass from 12mm up to 22.28mm thick. Our design and development intent was to produce a product that could take advantage of our "CGS Centurion glass" SGP Sentry Glass manufacturing to create a system that is strong, attractive and price competitive.
COLLECTION
CGS Smart Rail
PRODUCTION
Made in Australia
PRODUCT UPDATE
New internal clamping mechanism is now available. Internal pressure plate clamping is tightened by spanner which means this system can now be used in ground Channel applications. Short covers are available when making this system adaptable to any requirement
DOWNLOADS
↓ CGS Smart Rail Order form
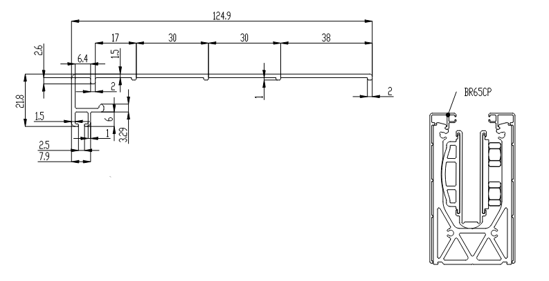
↓ BR78 Channel Drawings
↓ BR78CP Cover Plate Drawings
↓ Test Results for CGS Smart Channel
↓ Base rail system brochure (CGS) 2017
↓ BR 78 12mm mono 2 panels Page 1
↓ BR78 12mm mono 2 panels testing layout-Model
APPLICATIONS
CGS Smart Rail can be engineered to be handrail free in certain applications when used in Conjunction with "CGS Guardian " SGP Glass
DETAILS
This system is being offered for residential and high rise building projects. Due to the overwhelming volume of inquiry and enthusiasm for residential projects, we are delighted to announce off the shelf availability in lengths of 3000mm can ship around Australia.
FEATURES
-Easy to install saving on labor costs -Suitable for indoor and outdoor installations -Fully engineer tested using 6063T5 anodizing grade -Available in models to suit glass from 12mm to 22.28 mm -Can be top mounted, side mounted or recessed into concrete -Ultra Clear low iron toughened and ultra clear low iron toughened laminated glass -The system is dry glazed so requires no grout. This feature is very attractive to installers. -This system is attractive and designed with both current and future projects in mind! -Glass thickness's include 10mm, 12mm, 15mm, 11.52, 13.52, 14.28,15.04,17.52, 18.28 and 22.28 in many variations. -CGS Glass options include Toughened glass, tinted glass, curved glass, laminated glass and acid etched glass -Can be adjusted for camber. Allows for glass to be tilted 30 mm forward or aft. Tilt adjustment from either side so your glass panels line up perfectly. -Our glass and channel packages mean that this attractive and easy to install system is very affordable. Clear Glass Solutions are one source for glass, channel and top rail which reduces on supplier costs making this system very attractive for specifiers!
technical drawing
GALLERY












