Heroal W 72 Cw Window System
W 72 CW WINDOW SYSTEM
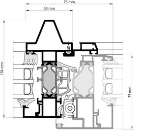
W 72 CW WINDOW SYSTEM
The heroal W 72 CW window system offers planners individual, object-oriented design options for window elements between floors. Large openings and spaces can thus be realised as a classic mullion and transom design.
INFORMATION
FRAME PROFILE DEPTH
72- 106 mm
LEAF PROFILE DEPTH
72-102-106 mm
BAR PROFILE DEPTH
76.5 - 84 mm
FRAME VISIBLE PROFILE WIDTH
28 - 38-50 mm
LEAF VISIBLE PROFILE WIDTH
Verdeckt / 33-43
BAR PROFILE VISIBLE WIDTH
50 mm
GLASS FILLING STRENGTH
64 mm
CASEMENT PROFI E VARIATIONS
- Push rod fitting groove [SBN]
- Plastic fitting groove [KBN]
THERMAL INSULATION
- Uf [100] = 1.5W/m²K1)/
- Uf [120] = 1.3W/m²K2)
MAX. LEAF HEIGHTS
2.800 mm
MAX. LEAF WEIGHT
300 kg
SASH/FRAME COMBINATION VISIBLE PROFILE WIDTH
97 - 77 mm
MAX. LEAF WIDTHS
1.600 mm
WIND LOAD RESISTANCE
C5/B5
AIR PERMEABILITY
4
DRIVING RAIN TIGHTNESS
E1050
PERFORMANCE CHARACTERISTICS
-Resistance to burglary -Continuous function -Resistance to driving rain
-Impact resistance -Heat insulation (Uw in W/m2K) / Profile width [mm]
-Thermal insulation [Uf in W/m2K] / Profile width [mm] -Mechanical resistance -Operating forces -Air permeability -Load-bearing capacity of safety equipment -Soundproofing class -Wind resistance
DETAILS
With a number of different profile variations to choose from, the heroal W 72 CW aluminium composite system is an attractive alternative to steel facades.



