Gutmann GLS 180 Sliding Door System
GUTMANN GLS 180 Sliding Door System
GUTMANN GLS 180 SLIDING DOOR SYSTEM
The simplicity of new views
The GUTMANN GLS 180 sliding door series impresses with its simple manufactoring, amazing performance and operation.
At the same time, GUTMANN meets the demands of modern architecture with large glazed surfaces. A pleasant transparency is provided due to high incidence of light.
INFORMATION
BRAND
Gutmann
PRODUCT TYPE
Door System
USE
Windows
OPERATING FORCES
1
MECHANICAL DURABILITY (SCHEME A)
3
WIND LOAD
C4 / B4
WATER TIGHTNESS
9A
MECHANICAL STRENGTH
5
AIR PERMEABILITY
4
USE
Sliding door
APPLICATIONS
- Residential
- Office
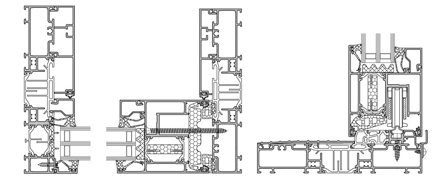
DETAIL
The opening and closing of the sliding doors are almost noiseless. In frame manufacture, the blank can be mitred or butt jointed. The symmetrical profile construction for the inner and outer fittings is the example of the simple installation of GUTMANN´s lifting sliding doors.
SYSTEM DESCRIPTION
Premium lifting sliding door with 80 mm leaf depth with a peak value of Uf = 2.0 W/m2K
- Sound isolation up to 44 dB
- Burglar resistance up to RC 2/WK 2
- No notching of frame and sash profiles
- Subsequent adjustment of locking points
- Simple installation of sash elements
- High sealing values against heavy rain and wind load
- Economical processing since all profile cutting is straight
- Straightforward seal of the meeting stiles using a simple sealing system
- Symmetrical profile design for uniform accessory parts in the inner and outer shell



